En Venta
PISO AMUEBLADO - ALVEAR TOWER.
Código: 189585

Blvd. Azucena Villaflor 559, C1107 Cdad. Autónoma de Buenos Aires, Argentina, Puerto Madero, Capital Federal, Argentina.

USD9.500.000

Apartamento
Compartir esta Propiedad

Descripción de la Propiedad

PISO COMPLETO, totalmente AMUEBLADO
.
Situado en lo mas alto de la ciudad. Con vistas inigualables.

Disponible para VENTA o ALQUILER.

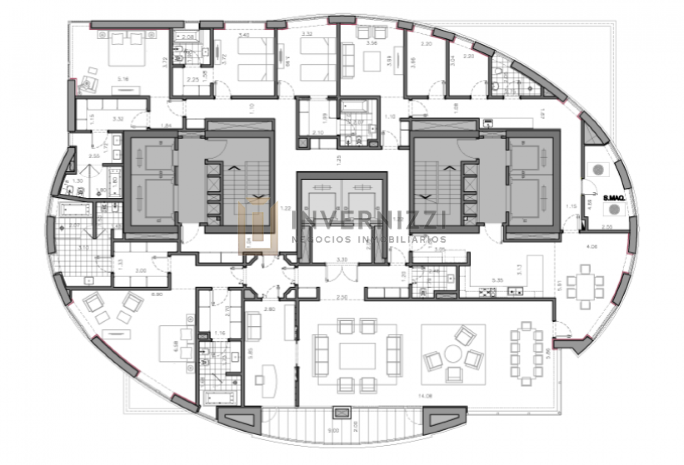
La unidad consta de 485m2 totales, de los cuales 448 m2 son cubiertos.

El piso cuenta con:
- Palier privado con dos ascensores principales
- Gran living comedor
- Cocina independiente con comedor diario
- Toilette
- 4 dormitorios, todos en suite
- 1 escritorio / playroom / cuarto de huéspedes
- 2 Dependencias de servicio
- Lavadero
- 4 cocheras

Piso de marmol y madera en toda la unidad.
De piso a techo 3,3 metros de altura libre.

Alvear Tower, la torre más alta de Argentina cuenta con:

- Rooftop en Piso 54
- Salón de fiestas (120 personas)
- Business center
- Spa &health center
- Piscina In-Out
- Piscina exterior semiolimpica
- Piscina para niños
- Wellness gym
- Micro cine
- Cancha de Tenis
- Hair Studio
- Cavas privadas (opcional)
- Kids playroom
- Sala para adolescentes con juegos de video
- Plaza de juegos al aire libre
- Sala para ensayos musicales
- Taller de hobbies

Mas detalles
Expensas: $ 4000000
  • Antigüedad 1 años